

地图文件下载在下面。
这张地图用了五天时间完成的,三天熬夜到早上十点多才睡觉!二天做到深夜三点多。
平均每天时间是下午三点做到深夜甚至通宵!
此图做的是双用,一是混战。
二是丧尸,这图我认真做的很仔细,不会用虐尸地方,一定很平衡的!。 二楼是适合丧尸服的地方。
我这么勤奋做图为什么?
都是为了大家能够有新地图玩!。
希望老大能够添加到服务器和丧尸服务器!
----------------------------------------------------------------
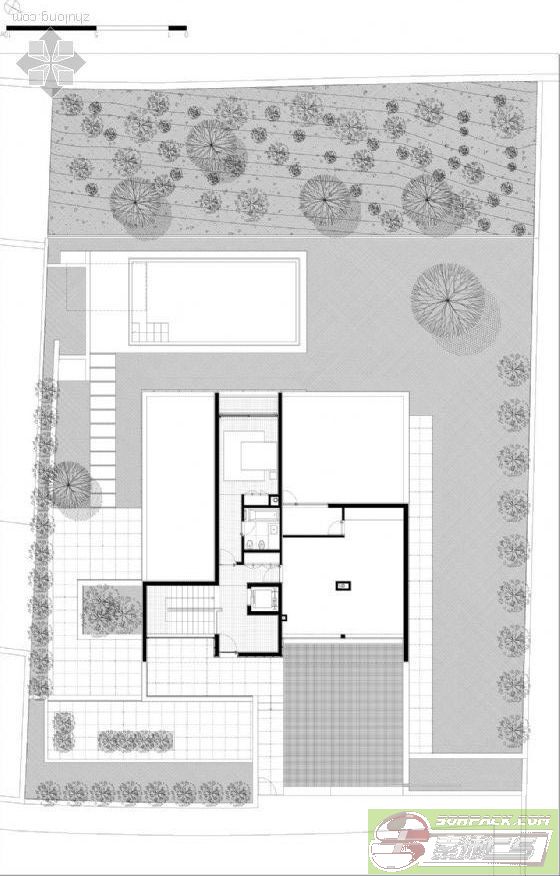
地图草图以一张别墅总规图而做的!
地图平面图:
地图前面
地图后面
正门
后花园
前门阳台
后花园阳台,旁边也是渠道其中之一
泳池,后花园阳台,蓝点是CT渠道!
渠道路径
大厅~
大厅~
大厅~
杂物旁边是一楼洗手间
二楼
二楼洗手间,C4点,浴缸和厕所,地上可以放置C4!
此主题相关图片如下:
CT渠道
T渠道
中间渠道
-----------------------------------------------
下载地址:
1.Wad纹理包+地图bsp
2.纹理包打包在地图文件







此主题相关图片如下:























































